Objektbeschreibung:
Beschreibung
Willkommen in dieser atemberaubenden Unterkunft Moderne Villa mit 3 Schlafzimmern, eingebettet in der malerischen Region Çatalköy. Erleben Sie den Inbegriff zeitgenössischen Wohnens in dieser luxuriösen Villa, die sich nahtlos in die natürliche Umgebung einfügt und gleichzeitig alle modernen Annehmlichkeiten bietet, die Sie sich wünschen.
Moderne Küche mit Kochinsel
Laminatboden
Spotbeleuchtung im gesamten Gebäude
Zentralheizungsleitungen
Badezimmer im Erdgeschoss und Obergeschoss
Stauraum unter der Treppe
Hauptschlafzimmer mit eigenem Bad & Ankleidezimmer,
2 große Gästezimmer- alle mit Einbauschränken,
Familienbadezimmer mit ebenerdiger Dusche,
separater Wäschebereich,
Dachterrasse,
Außenküchen-Infrastruktur,
Swimmingpool optional,
Meer- und Bergblick
Lage
Das Haus liegt in Catalköy -
15 Minuten von Kyrenia und ca. 30 Minuten von Nikosia entfernt.
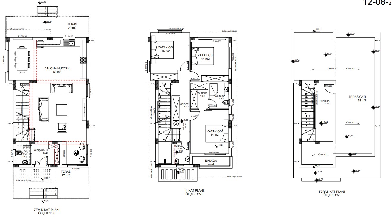
Raumaufteilung
Die Villa verfügt über einen geräumigen Wohnbereich mit moderner Küche und zentraler Insel, ideal für gemütliche Zusammenkünfte und Entspannung.
Im Obergeschoss finden Sie drei große Schlafzimmer, das Hauptschlafzimmer verfügt über ein eigenes Bad und einen begehbaren Kleiderschrank. Im gesamten Anwesen finden Sie Laminatböden und hohe Decken. Darüber hinaus gibt es im ersten Stock ein geräumiges Familienbadezimmer, das über eine großzügige ebenerdige Dusche verfügt. Im 2.Obergeschoss finden Sie zusätzlich zum Dachterrassenzugang einen separaten Bereich mit Anschlussmöglichkeit für die Waschmaschine. Es gibt eine unglaubliche Dachterrasse, auf der Sie in die atemberaubende Schönheit der umliegenden Landschaft mit Panoramablick auf das Meer und die Berge eintauchen können.
